DomovPortfólio
Rodinné domyDeveloperské projektyInteriéry a exteriéry
Kto smeReferencieKontakt

Ľubotice, Ľanová

úžitková plocha:
211
m2
počet podlaží:
2
počet izieb:
5
garáž:
ÁNO
viac info

O projekte

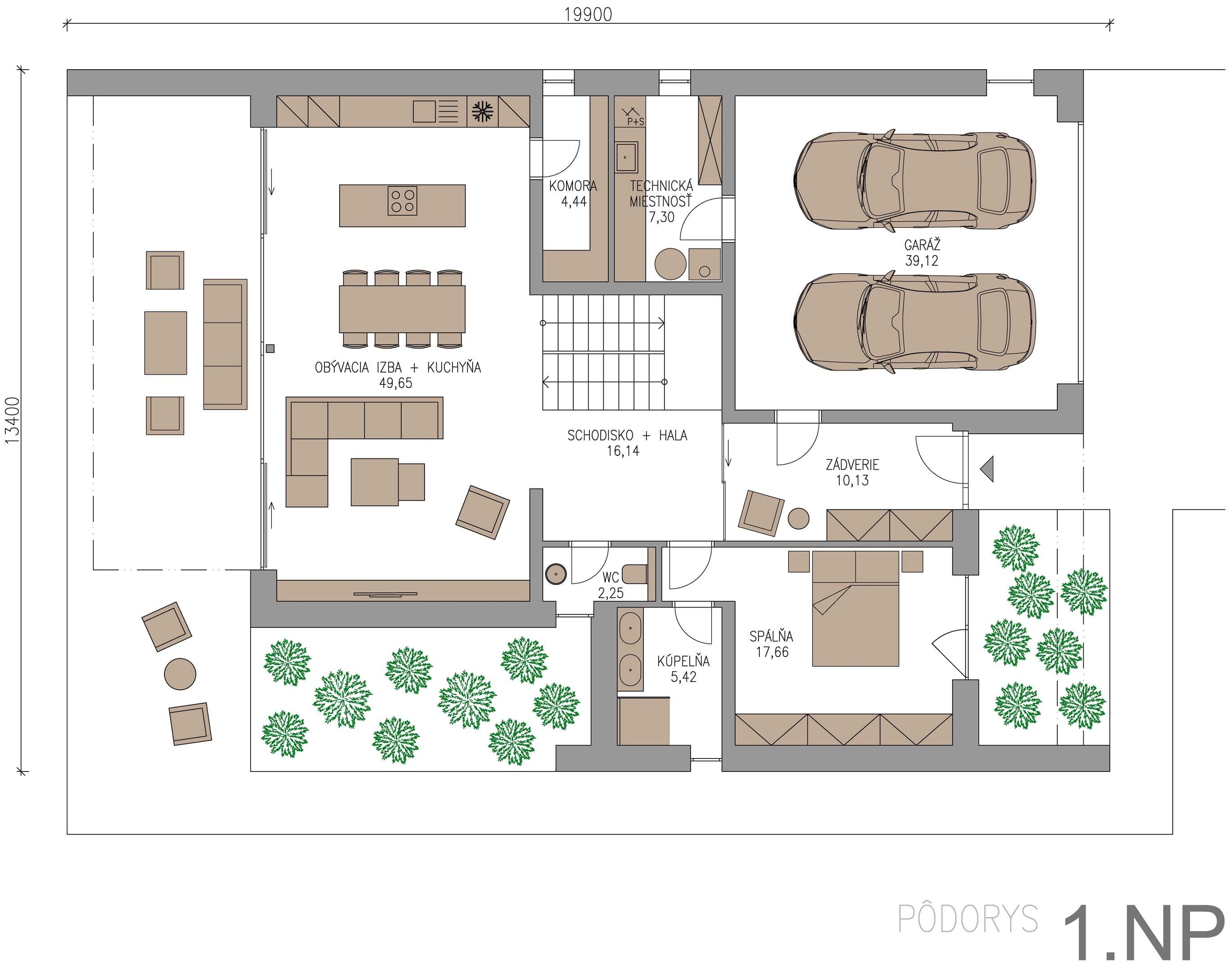
Dvojpodlažný rodinný dom je situovaný na mierne svahovitom pozemku v novovzniknutej obytnej zóne. Dom svojim pôdorysným tvarom vhodne zapadá na daný pozemok a ideálne prepája dennú časť domu so záhradou. Výrazným architektonickým prvkom sú presahujúce vertikálne steny z travertínového obkladu, ktoré jasne definujú pôdorysnú šírku domu. Strešná konštrukcia prvého nadzemného podlažia s otvorom pre zeleň a preslnenie spálne plní funkciu závetria pred hlavným vstupom.

Presklená stena v dennej časti maximalizuje výhľady do záhrady. Výraznejšie členitá fasáda bielej farby je doplnená fasádnym lamelovým obkladom a omietkou v antracitovej farbe. Predsadená obkladová garážová brána v jednotnom vzhľade s fasádou dotvára čisté línie prednej časti domu. Dispozícia rodinného domu vychádza z dispozičných požiadaviek investora a z danej orientácie pozemku v snahe maximálneho preslnenia obytných miestností. Nočná časť domu na poschodí disponuje terasou prístupnou zo všetkých izieb.

Galéria

Pôdorysy

No items found.

Máte záujem
o podobný projekt?

Napíšte nám
Ďakujeme!
Vaša správa bola odosláná a budeme sa jej čoskoro venovať.
Nastala chyba pri odosielaní formuláru.
Prosím skuste to ešte raz alebo nám priamo zavolajte.